モダン和室タイプ
Japanese Style Room

落ち着いた和の空間
モダン和室タイプ

雨垂れの音が
なつかしい
木立が洗われて
初夏の空に虹が立つと
山並みに笑顔が戻ってくる

モダン和室タイプ1
モダン和室タイプ2
モダン和室タイプ3
モダン和室タイプ4
モダン和室タイプ5
モダン和室タイプ6
 
モダン和室タイプ7
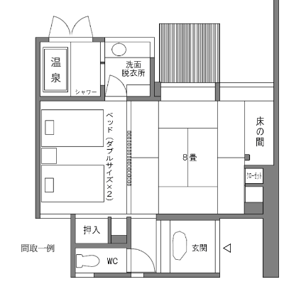
モダン和室タイプ間取一例

※掲載している写真・間取りは一例です。部屋によって異なる間取りがございます。
 
定員:3名
間取り:和室8帖+ベッド+半露天風呂(天然温泉)+温水洗浄機付きトイレ 約46㎡
設備:エアコン・電気ポット・冷蔵庫(空)・ドライヤー・金庫・スマートテレビ・無料Wi-Fi
アメニティ:ボディーソープ・シャンプー・リンス・歯磨きセット・タオル・バスタオル・館内着(作務衣)


※13歳未満のお子様やグループ・団体のご予約はお受けしておりません。
※宿泊料金は時期により変動致します。
※ご予約はご宿泊月の4ヶ月前から受付を開始しております。